Hızlı Menü X

Arkaplan Rengi

Linklerin Altını Çiz

Linkleri Belirginleştir

Ayarları Sıfırla

Kapat

Tarih: 28 Mart 2021, 11:19
Okunma: 847 Kez Görüntülendi

Karabağlar Belediyesi ekipleri çalışmalara yakında başlayacak.

 

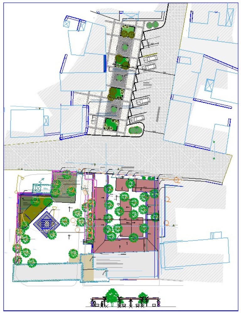
Uzundere Meydanı Ve Çevresi Düzenleniyor

 

Karabağlar Belediyesi, geçmişi yaklaşık 300 yıl öncesine dayanan ve bugün mahalle statüsünde kalan Uzundere Köyü’nün meydanıyla çevresini düzenlemeye hazırlanıyor.

Proje kapsamında 1670 metrekare yüzölçümündeki köy meydanıyla, kütüphane, muhtarlık ve spor kulübü binalarının bulunduğu alan baştan sona elden geçirilecek. Burada dinlenme alanları, sosyal aktivite alanları, çocuk oyun ve yetişkin spor alanları yapılacak. Ayrıca, köydeki üretici kadınların öncülüğünde perşembe günleri kurulan pazaryerindeki tezgâhlar da düzenlenecek. Satış yerlerinin üzeri kapatılacak.

Karabağlar Belediye Başkanı Muhittin Selvitopu, hem Uzundere’de yaşayanların rahat etmelerini sağlamak hem de ekonomik yaşamlarına katkı sağlamayı amaçladıklarını belirterek, projenin yakında başlayacağını söyledi.

Kavacık ve Tırazlı’yla birlikte Karabağlar’ın 3 köyünden biri olan Uzundere’nin yüzlerce yıllık kendine özgü dokusunu korumak ve değerlerini geleceğe taşımayı hedeflediklerini vurgulayan Başkan Selvitopu, bu doğrultuda Dokuz Eylül Üniversitesi Mimarlık Fakültesi’yle birlikte Uzundere Kentsel Tasarım Projesi’nin hazırlandığını da hatırlattı.

 

 

 

Top